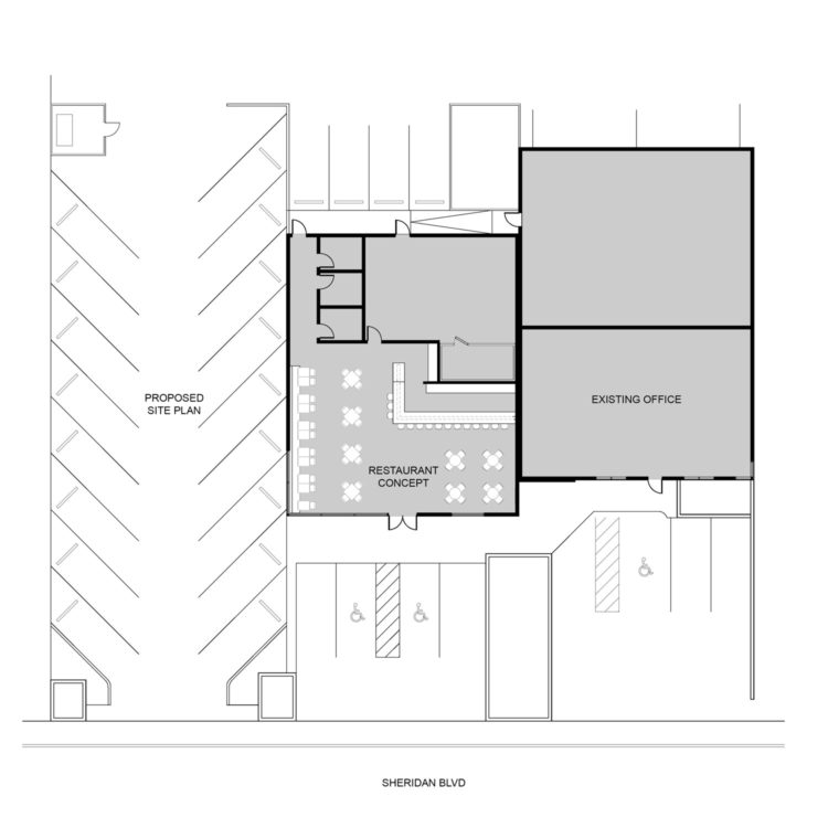
2465 Sheridan
2465 Sheridan
- Commercial, Core & Shell
- 09/02/18
Description
2465 Sheridan is a 7,900 s.f. office building at the edge of Edgewater, CO. Arrow B was hired to give the building a facelift to attract prospective tenants and analyze subdividing the building into a mixed use, multi-tenant redevelopment with a restaurant and rooftop bar overlooking Sloan’s Lake.
Services
- Site & Building Assessment
- Field Documentation / Record Drawings
- Code Analyses
- Site Design & Parking Analyses
- Concept Design
- Visualization / Rendering
- Landlord Tenant Services
